General Alert
Trình duyệt của bạn không hỗ trợ tìm kiếm bằng giọng nói! Vui lòng đổi trình duyệt khác

Chính chủ bán lại căn hộ 134,5m2 đang cải tạo nội thất 200tr giá bán lại nhỉnh 3 tỷ bao phí

Dự án Tecco Garden, đường Tứ Hiệp, Xã Tứ Hiệp, Huyện Thanh Trì, Thành phố Hà Nội
Xem trên bản đồ quy hoạch

TỔNG GIÁ TRỊ:

3.1 Tỷ
(23048327.1/ m2)
Diện tích
134.5 M2
Hướng
Bắc
Phòng ngủ
Đang cập nhật
Phòng tắm
Đang cập nhật

Tổng quan

Ảnh giới thiệu Chính chủ bán lại căn hộ 134,5m2 đang cải tạo nội thất 200tr giá bán lại nhỉnh 3 tỷ bao phí
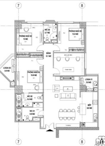
Căn 4PN đang thiết kế lại thành 3PN + 1 Đa năng (Có thể làm phòng thờ hoặc phòng đọc sách). Gia đình xác định làm nội thất để ở nhưng do kế hoạch thay đổi nên cần bán lại, nội thất làm hết 200tr giờ bán lại nguyên giá lỗ phần nội thất. Ưu tiên khách thanh toán hết 1 lần tiền - Giá 3,1 tỷ (Bao phí). + Tầng 24 tòa B1. + Ban công Tây tứ mệnh. + Diện tích 134,5 m tim tường. + DT tim tường: 127.3m2. + Làm lại sàn gỗ, trần thạch cao, thay đèn nhập khẩu, sơn lại tường + cửa màu hiện đại, làm lại tbi vệ sinh, lắp bình nóng lạnh.. (Nâng cấp nội thất hết 200tr). + Phòng khách rộng thông phòng bếp. + Gần trung tâm Huyện Thanh Trì, gần tòa án và công an Thanh Trì. ---- Chi tiết xem nhà thực tế liên hệ: 08383 262 03 - Miễn trung gian.

Chi tiết bất động sản

Phòng ngủ -
Chiều dài -
Diện tích đất 134.5 M2
Hướng Bắc
Hiện trạng nhà -
Phòng tắm -
Chiều rộng -
Diện tích sử dụng 134.5 M2
Độ rộng mặt tiền đường -
Giấy tờ

Tiện ích xung quanh

Cơ sở vật chất
Công viên
Y tế giáo dục
Hospital
Tiêu dùng, ẩm thực
Nhà hàng
Trung tâm thương mại
Quán cà phê
Siêu thị
An ninh, Vệ sinh
Hệ thống PCCC
An ninh bảo vệ
Thể thao
Fitness
Giải trí
Khu vui chơi trẻ em
Làm đẹp - Spa

Vị trí bất động sản

Lưu tin ngay Báo xấu

Đăng ký nhận thông tin qua Email

Thông tin luôn được cập nhật mới nhất gửi vào Email của bạn
Hệ thống đang trong giai đoạn chạy thử nghiệm