General Alert
Trình duyệt của bạn không hỗ trợ tìm kiếm bằng giọng nói! Vui lòng đổi trình duyệt khác

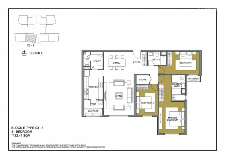
Bán gấp! Chính chủ bán căn hộ chung cư Mulberry Lane, 3PN, dt 132m2, giá 4.2 tỷ LH: 0936196386

Dự án Mulberry Lane, Phường Mộ Lao, Quận Hà Đông, Thành phố Hà Nội
Xem trên bản đồ quy hoạch

TỔNG GIÁ TRỊ:

4.2 Tỷ
(31818181.8/ m2)
Diện tích
132.0 M2
Hướng
Bắc
Phòng ngủ
Đang cập nhật
Phòng tắm
Đang cập nhật

Tổng quan

Ảnh giới thiệu Bán gấp! Chính chủ bán căn hộ chung cư Mulberry Lane, 3PN, dt 132m2, giá 4.2 tỷ LH: 0936196386
Tôi cần bán nhanh căn hộ chung cư tại tòa E chung cư Mulberry Lane, Mộ Lao, Hà Đông, Hà Nội. Căn hộ rộng 132m2, thiết kế nhà có 3 phòng ngủ, 2 WC, phòng khách có cửa sổ thoáng, phòng bếp có ban công rộng. Nhà hướng ban công là hướng Nam nên rất mát, view nhìn biệt thự và hồ dài vô cùng thoáng đãng, nhìn được pháo hoa hồ Văn Quán, tàu điện trên cao. Nhà bố trí các phòng vô cùng hợp lý, ko có diện tích thừa trong nhà, các phòng đều có ánh sáng tự nhiên. Khuôn viên tiện ích vô cùng thích thú: Khuôn viên rộng, nhiều cây xanh mát, đầy đủ các tiện ích nội khu ngoại khu: Khu đi bộ, bể bơi, khu leo núi trong nhà, khu bóng bàn, bóng rổ, trường học trong nội khu, tập gym 100k/người/tháng, khu nghỉ ngơi thư giãn, đài phun nước rất nhiều các tiện ích miễn phí khác. Sống ở đây là cư dân hướng đến chất lượng cuộc sống, đầy đủ tiện ích cho tất cả các thế hệ từ người già đến trẻ em. Do gia đình chuyển xuống biệt thự Hoàng Thành Villas ngay cạnh để tiện kinh doanh quản lý cửa hàng ko ở nữa nên mới có nhu cầu bán. Giá bán công khai: 4.2 tỷ (nhà full nội thất gắn tường). Liên hệ: 0936.196.386 (Miễn trung gian, quảng cáo, xin cảm ơn).

Chi tiết bất động sản

Phòng ngủ -
Chiều dài -
Diện tích đất 132.0 M2
Hướng Bắc
Hiện trạng nhà -
Phòng tắm -
Chiều rộng -
Diện tích sử dụng 132.0 M2
Độ rộng mặt tiền đường -
Giấy tờ

Tiện ích xung quanh

Vị trí bất động sản

Lưu tin ngay Báo xấu

Đăng ký nhận thông tin qua Email

Thông tin luôn được cập nhật mới nhất gửi vào Email của bạn
Hệ thống đang trong giai đoạn chạy thử nghiệm